Ãâ·Ñ¶¨ÖƲúÆ·¼Æ»®¡¡Ô¤Ô¼ÊµµØ¿¼²ì
- ÏàʶÐèÇóÈ·¶¨¼Æ»®
- Ç©ÊðÌõÔ¼×¼ÆÚÉú²ú
- ÅäËÍ×°ÖÃÖ¸µ¼²Ù×÷
- Ãâ·ÑÅàѵºã¾ÃÊÛºó
135-2505-6999
²úÆ·ÖÖ±ð£º×¨ÓÃÆðÖØ»ú
Ó¦ÓùæÄ££º
ÏúÊÛЧÀÍ»ú¹¹
480Óà¼ÒÖÖÖÖ¼Ó¹¤×°±¸
1600Óą̀¸÷¼¶ÉùÓþ³Æºô
120ÓàÏîÌìÏÂ×ÉѯЧÀ͵绰
135-2505-6999

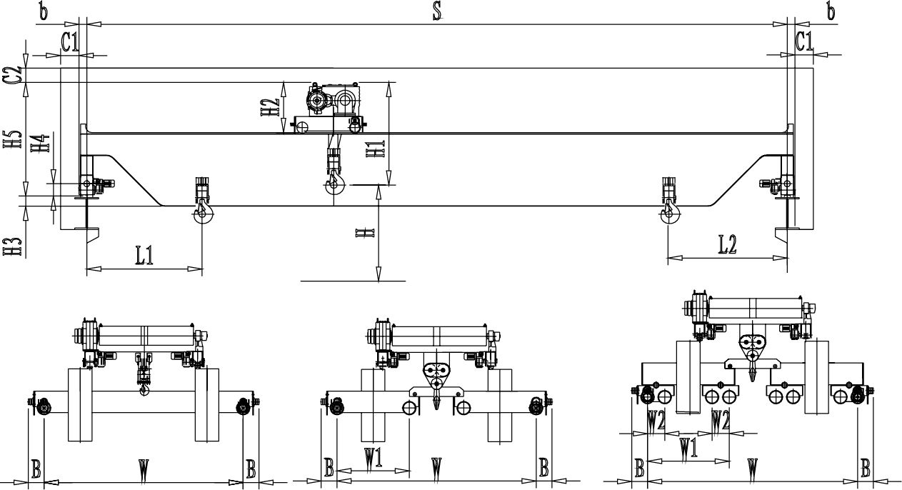
H-ÆðÉý¸ß¶È Hoisting height
¡¡¡¡V1-ÆðÉýËÙÂÊ Hoisting speed
¡¡¡¡V2-С³µÔËÐÐËÙÂÊ Traveling speed of trolley
¡¡¡¡V3-´ó³µÔËÐÐËÙÂÊ Traveling speed of crane
¡¡¡¡L1-ÆðÖØ»ú×ó*ÏÞ Left limit of crane
¡¡¡¡L2-ÆðÖØ»úÓÒ*ÏÞ Right limit of crane
¡¡¡¡C1-ÆðÖØ»úÁ½Í·*ÏÞ Minimum limit of both ends
¡¡¡¡C2-ÆðÖØ»ú¶¥²¿*ÏÞ Minimum limit of top of crane
¡¡¡¡S-ÆðÖØ»ú¿ç¶È Crane span
¡¡¡¡H1-ÆðÖØ»úС³µ¹³Ðĵ½¶¥²¿µÄ¾àÀë Distance between core of hook and its top
¡¡¡¡H2-ÆðÖØ»úС³µµÄ¸ß¶È Height of trolley
¡¡¡¡H3-ÆðÖØ»úµ×²¿µ½´ó³µ¹ìµÀÃæµÄ¾àÀë Distance between the bottom of crane and crane rail plane
¡¡¡¡H4-ÆðÖØ»ú»º³åÆ÷µ½´ó³µ¹ìµÀÃæµÄ¾àÀë Distance between buffer of crane and crane rail plane
¡¡¡¡H5-ÆðÖØ»ú¶¥²¿µ½´ó³µ¹ìµÀÃæµÄ¾àÀë Distance between the top of crane and crane rail plane
¡¡¡¡W-ÆðÖØ»úÍâÁ½¸ö³µÂÖÖ®¼äµÄ¾àÀë Distance between two outmost wheels of crane
¡¡¡¡W1-ÆðÖØ»úÒ»½ÇÍâÁ½¸ö³µÂÖÖ®¼äµÄ¾àÀë Distance between two outmost wheels of one corner of crane
¡¡¡¡W2-ÆðÖØ»ų́³µÁ½¸ö³µÂÖÖ®¼äµÄ¾àÀë Distance between two wheels of trolley
¡¡¡¡B-ÆðÖØ»úÍâ³µÂÖ¾àÀ뻺³åÆ÷¶Ë²¿Ö®¼äµÄ¾àÀë Distance from the outmost wheel to ends of buffer
¡¡¡¡b-ÆðÖØ»ú¶Ë²¿¾àÀë´ó³µ¹ìµÀÖ®¼äµÄ¾àÀë Distance from ends to rail of crane
¡¡¡¡G-ÆðÖØ»úÕû³µµÄÖØÁ¿ Overall weight of crane
¡¡¡¡K-ÆðÖØ»ú´óÂÖѹ Maximum wheel pressure of crane
¡¡¡¡P-ÆðÖØ»ú×ܵŦÂÊ Total power of crane
¡¡¡¡Ñ¡ÐÍ˵Ã÷
¡¡¡¡1¡¢±¾²úƷϵÁбí½öÁгöÁ˳£ÓõĻù±¾µÄ¹æ¸ñÆðÖØ»ú£¬£¬£¬£¬£¬£¬£¬£¬ÊÂÇé¼¶±ðΪA5(FEM 2m)ʱµÄ±ê×¼¿ç¶È£¬£¬£¬£¬£¬£¬£¬£¬Ã»Óи±¹³µÄÊÒÄÚÓÃÆðÖØ»ú¡£¡£¡£¡£¡£¡£¿£¿£¿£¿£¿£¿Í»§Æ¾Ö¤ÐèÒª¿ÉÒÔÌá³öÏìÓ¦µÄÒªÇ󡣡£¡£¡£¡£¡£
¡¡¡¡2¡¢±¾ÏµÁÐÒ²¿ÉÒÔÔöÌí¸±ÆðÖØ»ú¹¹£¬£¬£¬£¬£¬£¬£¬£¬Ò²¿ÉÒÔÔöÌíÇáÔØÊ±ËÙÂʼӱ¶µÄÉèÖ㬣¬£¬£¬£¬£¬£¬£¬Ò»Ñùƽ³£Ö÷¸±µÄÉèÖÃΪ4:1£¬£¬£¬£¬£¬£¬£¬£¬Ò²¿ÉÒÔÆ¾Ö¤¿Í»§µÄÒªÇóÉ趨¡£¡£¡£¡£¡£¡£ÇôÉèÖø±¹³ÔòÆðÖØ»úµÄ×ÜÖØ¼°ÂÖѹ»áÓÐËùÔöÌí¡£¡£¡£¡£¡£¡£
¡¡¡¡3¡¢±íÖеijߴ磬£¬£¬£¬£¬£¬£¬£¬ÖØÁ¿£¬£¬£¬£¬£¬£¬£¬£¬ÂÖѹ¹©¿Í»§¶©»õʱ²Î¿¼£¬£¬£¬£¬£¬£¬£¬£¬ÈôÊǿͻ§µÄÐèÒªÌõ¼þ±¬·¢×ª±ä£¬£¬£¬£¬£¬£¬£¬£¬ÈçÊÂÇé¼¶±ð£¬£¬£¬£¬£¬£¬£¬£¬ËÙÂÊ£¬£¬£¬£¬£¬£¬£¬£¬ÆðÉý¸ß¶ÈÓÐת±äʱ£¬£¬£¬£¬£¬£¬£¬£¬ÏìÓ¦µÄ²ÎÊý£¬£¬£¬£¬£¬£¬£¬£¬³ß´ç£¬£¬£¬£¬£¬£¬£¬£¬ÖØÁ¿£¬£¬£¬£¬£¬£¬£¬£¬ÂÖѹµÈ¶¼»á±¬·¢×ª±ä£¬£¬£¬£¬£¬£¬£¬£¬ÏÖʵµÄ²ÎÊý£¬£¬£¬£¬£¬£¬£¬£¬ÖÊÁ¿£¬£¬£¬£¬£¬£¬£¬£¬ÂÖѹÒÔÌõÔ¼µÄÒªÇóΪ׼¡£¡£¡£¡£¡£¡£
¡¡¡¡4¡¢±íÖÐÁгöµÄÆðÉýËÙÂÊ£¬£¬£¬£¬£¬£¬£¬£¬¾Þϸ³µËÙÂÊΪ±ê×¼Öµ£¬£¬£¬£¬£¬£¬£¬£¬¿ÉÒÔÆ¾Ö¤¿Í»§µÄÐèÇó×öÏìÓ¦µÄµ÷½â¡£¡£¡£¡£¡£¡£
¡¡¡¡5¡¢ÊÖÒÕ²ÎÊý¼°³ß´ç»áÓÉÓÚÊÖÒÕµÄˢлòÕßÉý¼¶ÓÐËùת±ä£¬£¬£¬£¬£¬£¬£¬£¬ÈôÓÐÒÉÎʵϰ¿ÉÒԺ͹«Ë¾ÊÖÒÕ²¿ÁªÏµ¡£¡£¡£¡£¡£¡£

















ʵÁ¦°ü¹Ü¡¡Äê²úÏú97000Óą̀
ÏÖÓÐÔ±¹¤3100ÈË£¬£¬£¬£¬£¬£¬£¬£¬Õ¼µØ68ÍòÓàÆ½·½Ã×£¬£¬£¬£¬£¬£¬£¬£¬ÓµÓÐ×ʲú12.8ÒÚÔª£¬£¬£¬£¬£¬£¬£¬£¬480Óà¼ÒÏúÊÛЧÀÍ»ú¹¹·øÉ亣ÄÚÍ⣬£¬£¬£¬£¬£¬£¬£¬ÖÖÖÖ¼Ó¹¤×°±¸1600Óą̀£¨Ì×£©Æ·Åưü¹Ü¡¡ÖØ»úлḱÀíʳ¤µ¥Î»
ÒÑ»ñ²¿¼¶¡¢Ê¡¼¶120ÓàÏîÉùÓþ³Æºô£¬£¬£¬£¬£¬£¬£¬£¬²úÆ·ÍÑÏúÌìÏÂ30¶à¸öÊ¡ÊÐ×ÔÖÎÇøÓë¾ü¹¤¡¢ºËµç¡¢º½ÌìµÈ¹úÆó¼¯ÍލÉèÁËÓÅÒìµÄÓªÒµ¹ØÏµÖÊÁ¿°ü¹Ü¡¡°ÙµÀÖʼ칤ÐòרÈËרְ
ÍêÉÆµÄÖÊÁ¿ÏµÍ³¡¢ÑÏ¿áµÄÖÎÀíÖÆ¶È£¬£¬£¬£¬£¬£¬£¬£¬ÒÑͨ¹ýGB/T19001/ISO9001ÖÊÁ¿ÖÎÀíϵͳ£¬£¬£¬£¬£¬£¬£¬£¬GB/T24001/ISO14001ÇéÐÎÖÎÀíϵͳµÈЧÀͰü¹Ü¡¡ÊÛºó24Сʱ¿ìËÙÏìÓ¦
ƾ֤ÌõÔ¼ÒªÇóΪÊÛ³öµÄ×°±¸¾ÙÐÐ×°Öᢵ÷ÊÔºÍÅàѵÂò·½ÊÖÒÕÖ°Ô±£¬£¬£¬£¬£¬£¬£¬£¬7*24Сʱרְ¿Í·þ¿ìËÙÏìӦЧÀÍ£¬£¬£¬£¬£¬£¬£¬£¬¿ìËÙ½â¾öʹÓÃÄÑÌâÃâ·Ñ¶¨ÖƲúÆ·¼Æ»®¡¡Ô¤Ô¼ÊµµØ¿¼²ì
רעΪ¿Í»§ÌṩÆð֨װ±¸ÕûÌå½â¾ö¼Æ»®
רעΪ¿Í»§ÌṩÆð֨װ±¸ÕûÌå½â¾ö¼Æ»®
01
ÏàʶÐèÇó02
È·¶¨ÐèÇó03
Ç©ÊðÌõÔ¼04
×¼ÆÚÉú²ú05
ÅäËÍ×°ÖÃ01
ÊÛºóЧÀÍ
ÌìÏÂͳһЧÀÍÈÈÏߣº
135-2505-6999
ɨһɨ
¹Ø×¢ÎÒÃÇ
ÌìÏÂÃâ·ÑЧÀÍÈÈÏß
135-2505-6999