BET16Èð·á¹ú¼Ê(Öйú)Ψһ¹Ù·½ÍøÕ¾

½Ó´ý»á¼û¡°µ¥ÁºÆðÖØ»ú³§¼Ò_Ë«ÁºÆðÖØ»ú³§¼Ò_ºÓÄÏÊ¡BET16Èð·á¹ú¼Ê(Öйú)Ψһ¹Ù·½ÍøÕ¾¼¯ÍÅ¡±¹Ù·½ÍøÕ¾£¡

135-2505-6999

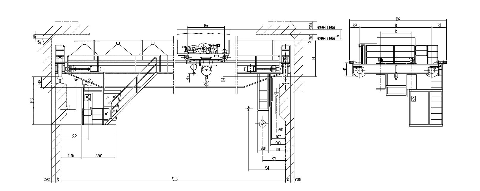
QBÐÍ5~50£¯10¶Ö·À±¬ÇÅʽÆðÖØ»ú

²úÆ·ÖÖ±ð£ºË«ÁºÆðÖØ»ú

Ó¦ÓùæÄ££º

  • ÏúÊÛЧÀÍ»ú¹¹

    480Óà¼Ò
  • ÖÖÖÖ¼Ó¹¤×°±¸

    1600Óą̀
  • ¸÷¼¶ÉùÓþ³Æºô

    120ÓàÏî
¹«Ë¾ÉèÓÐÊÛºóЧÀÍÍÅ¶Ó £¬£¬£¬£¬£¬£¬£¬³ý²úÆ·ÊÛºó±£ÐÞÒ»ÄêÍâ £¬£¬£¬£¬£¬£¬£¬ºã¾ÃÌṩÁãÅä¼þºÍÖÕÉíάÐÞ
Ãâ·Ñ×Éѯ

ÌìÏÂ×ÉѯЧÀ͵绰

135-2505-6999
ÐÂÎÅ×ÊѶ
¹ØÓÚBET16Èð·á¹ú¼Ê(Öйú)Ψһ¹Ù·½ÍøÕ¾
¹¤³Ì°¸Àý
ÁªÏµBET16Èð·á¹ú¼Ê(Öйú)Ψһ¹Ù·½ÍøÕ¾
²úÆ·ÏÈÈÝ/ Product introduction

20160228091306327

¡¡¡¡QBÐÍ·À±¬ÇÅʽÆðÖØ»úËùÓеç»ú¡¢µçÆ÷·À±¬ÐÔÄÜÇкÏGB3836£®2-2000¡¶±¬Õ¨ÐÔÆøÌåÇéÐÎÓÃµçÆø×°±¸µÚ2²¿·Ö£º¸ô±¬ÐÍ¡°d¡±¡·¡¢Õû»úÐÔÄÜÇкÏJB£¯T5897-2006¡¶·À±¬ÇÅʽÆðÖØ»ú¡·±ê×¼Ö®»®¶¨ £¬£¬£¬£¬£¬£¬£¬¾­¹ú¼ÒÖ¸¶¨µÄ·À±¬²úÆ·Ä¥Á·µ¥Î»Ä¥Á·¼°¸ñ £¬£¬£¬£¬£¬£¬£¬È¡µÃÁË¡¶·À±¬¼°¸ñÖ¤¡·¡£¡£¡£¡£¡£¡£¡£¡£·À±¬±ê¼Ç»®·ÖΪExdII BT4¡¢Exd II CT4¡£¡£¡£¡£¡£¡£¡£¡£

¡¡¡¡±¾²úÆ·ÊÊÓÃÓÚ¹¤³§ÄÚ·À±¬ÄÜÁ¦²»¸ßÓÚII B»òII C¼¶ £¬£¬£¬£¬£¬£¬£¬ÒýȼζÈ×é±ð²»µÍÓÚT4×éµÄ¿ÉȼÐÔÆøÌå»òÕôÆøÓë¿ÕÆøÐγɵı¬Õ¨ÐÔÆøÌå»ìÏýÎïµÄ³¡ºÏ £¬£¬£¬£¬£¬£¬£¬ÊÊÓõÄΣÏÕÇøÓòΪ1Çø»ò2Çø(Ïê¼ûGB3836.1-2000)¡£¡£¡£¡£¡£¡£¡£¡£

¡¡¡¡±¾²úÆ·Ò»Ñùƽ³£ÎªµØÃæ²Ù×÷ £¬£¬£¬£¬£¬£¬£¬Æ¾Ö¤Óû§ÐèÒªÒ²¿ÉÒÔ˾»úÊÒ²Ù×÷¡£¡£¡£¡£¡£¡£¡£¡£ÊÂÇé¼¶±ðΪÖм¶¡£¡£¡£¡£¡£¡£¡£¡£

Bet16Èð·á¹ÙÍø

Bet16Èð·á¹ÙÍø


×ÉѯÈÈÏߣº

135-2505-6999
ÁªÏµÈË£º
ÁºË¾Àí
¹Ì »°£º
13633736733
ÊÖ »ú£º
135-2505-6999
´« Õæ£º
0373-6019792
ÓÊ Ï䣺
hnks966@126.com
µØ Ö·£º
ºÓÄÏÊ¡³¤Ô«Êг¤ÄÕ¹¤ÒµÇøBET16Èð·á¹ú¼Ê(Öйú)Ψһ¹Ù·½ÍøÕ¾Â·ÓëγÈý·½»»ã´¦

Ãâ·Ñ¶¨ÖƲúÆ·¼Æ»®¡¡Ô¤Ô¼ÊµµØ¿¼²ì

BET16Èð·á¹ú¼Ê(Öйú)Ψһ¹Ù·½ÍøÕ¾ÆðÖØÉú²úʵÁ¦

רעΪ¿Í»§ÌṩÆð֨װ±¸ÕûÌå½â¾ö¼Æ»®

BET16Èð·á¹ú¼Ê(Öйú)Ψһ¹Ù·½ÍøÕ¾ÆðÖØÐ§ÀÍÁ÷³Ì

רעΪ¿Í»§ÌṩÆð֨װ±¸ÕûÌå½â¾ö¼Æ»®

  • 01

    ÏàʶÐèÇó
    °²ÅÅרÈËÈÏÕæ¿Í»§µ÷ÑÐ £¬£¬£¬£¬£¬£¬£¬Ïàʶ¿Í»§ÐèÇó
  • 02

    È·¶¨ÐèÇó
    ƾ֤¿Í»§ÏÖÕæÏàÐÎÁ¿Éí¶¨ÖÆ²úÆ·¼Æ»®
  • 03

    Ç©ÊðÌõÔ¼
    ¿Í»§Ó빫˾ǩÊð²úÆ·¶©¹ºÌõÔ¼
  • 04

    ×¼ÆÚÉú²ú
    ƾ֤¶©µ¥ £¬£¬£¬£¬£¬£¬£¬±£Öʱ£Á¿¿ìËÙÉú²ú
  • 05

    ÅäËÍ×°ÖÃ
    רÊôÎïÁ÷ÅäËÍ £¬£¬£¬£¬£¬£¬£¬×¨ÒµÖ°Ô±×°ÖÃ
  • 01

    ÊÛºóЧÀÍ
    Ãâ·ÑÅàѵ²Ù×÷¼¼ÇÉ £¬£¬£¬£¬£¬£¬£¬24СʱÊÛºóЧÀÍ
Ïà¹Ø²úÆ·/ Strength display
QDÐÍ400£¯80~450£¯80¶Öµõ¹³ÇÅʽ

QDÐÍ400£¯80~450£¯80¶Öµõ¹³ÇÅʽ

QDÐÍ300£¯40~350£¯75¶Öµõ¹³ÇÅʽ

QDÐÍ300£¯40~350£¯75¶Öµõ¹³ÇÅʽ

QDÐÍ125£¯32~250£¯50¶Öµõ¹³ÇÅʽ

QDÐÍ125£¯32~250£¯50¶Öµõ¹³ÇÅʽ

Ïà¹ØÐÂÎÅ/ Related news
ÍøÕ¾Ê×Ò³ ¹ØÓÚBET16Èð·á¹ú¼Ê(Öйú)Ψһ¹Ù·½ÍøÕ¾ ²úÆ·ÖÐÐÄ Ð§ÀÍÖ§³Ö ×ÊÖÊÉùÓþ Éú²úʵÁ¦ ÐÂÎÅ×ÊѶ ÁªÏµBET16Èð·á¹ú¼Ê(Öйú)Ψһ¹Ù·½ÍøÕ¾
¶þάÂë
ɨһɨ
΢ÐŹØ×¢
°æÈ¨ËùÓС¡BET16Èð·á¹ú¼Ê(Öйú)Ψһ¹Ù·½ÍøÕ¾ÓÐÏÞ¹«Ë¾¡¡±¸°¸ºÅ£ºÔ¥ICP±¸17001028ºÅ-6¡¡
ÔÚÏß×Éѯ
Ë÷Òª±¨¼Û
ɨһɨ

ɨһɨ
¹Ø×¢ÎÒÃÇ

ÌìÏÂÃâ·ÑЧÀÍÈÈÏß
135-2505-6999

·µ»Ø¶¥²¿
¡¾ÍøÕ¾µØÍ¼¡¿¡¾sitemap¡¿