Ãâ·Ñ¶¨ÖƲúÆ·¼Æ»®¡¡Ô¤Ô¼ÊµµØ¿¼²ì
- ÏàʶÐèÇóÈ·¶¨¼Æ»®
- Ç©ÊðÌõÔ¼×¼ÆÚÉú²ú
- ÅäËÍ×°ÖÃÖ¸µ¼²Ù×÷
- Ãâ·ÑÅàѵºã¾ÃÊÛºó
135-2505-6999
²úÆ·ÖÖ±ð£ºË«ÁºÆðÖØ»ú
Ó¦ÓùæÄ££º
ÏúÊÛЧÀÍ»ú¹¹
480Óà¼ÒÖÖÖÖ¼Ó¹¤×°±¸
1600Óą̀¸÷¼¶ÉùÓþ³Æºô
120ÓàÏîÌìÏÂ×ÉѯЧÀ͵绰
135-2505-6999
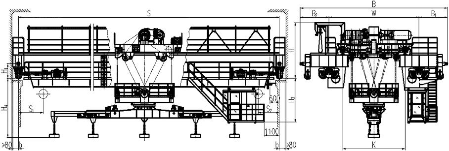
¡¡¡¡±¾ÆðÖØ»ú´øÓпÉÐýת¡¢ÓÖ¿ÉÉìËõµÄµç´Å¹ÒÁº£¬£¬£¬£¬£¬£¬ÓÃÓÚ¸Ö³§¡¢´¬³§¡¢¿Ú°¶¡¢¶Ñ³¡ºÍ²Ö´¢µÈÊÒÄÚ»ò¶ÌìµÄÀο¿¿ç¼ä£¬£¬£¬£¬£¬£¬×°Ð¶¼°°áÔ˸ְ塢Ð͸֡¢Å̾íµÈÎïÁÏ¡£¡£¡£¡£¡£ÌØÊâÊÊÓÃÓÚµõÔ˲î±ð¹æ¸ñÇÒÐèˮƽÐýתµÄ³¡ºÏ£¬£¬£¬£¬£¬£¬Äܹ»Æ¾Ö¤ËùµõÎïÁϵĹæ¸ñ(²î±ðºñ¶È¡¢³¤¶È¡¢ÕÅÊýµÈ)ºÍÖØÁ¿£¬£¬£¬£¬£¬£¬µç¶¯µ÷½âµç´ÅÌú¼ä¾à¼°ÎÞ¼¶µ÷Àíµç´ÅÌú´ÅÁ¦¡£¡£¡£¡£¡£Æ¾Ö¤Óû§ÒªÇó¿ÉÌṩ£º¸÷»ú¹¹µÄµ÷ËÙ(1£º10»ò¸ü´ó)¡¢³¬Ôؼ°±¨¾¯¡¢Ò£¿£¿£¿£¿£¿£¿£¿Ø¡¢PLC¿ØÖƼ°¹ÊÕϼì²â¡¢ÏÔʾ¡¢¼Í¼ºÍ´òӡϵͳµÈ¡£¡£¡£¡£¡£ (ÒÔϲÎÊýΪÊÒÄÚÓÃ)
¡¡¡¡The crane has slewing telescopic electromagnetic carrier-beam£»£»£»£»£»£»is applicable to the fixed span at indoors or outdoors of steel mill£¬£¬£¬£¬£¬£¬shipyard£¬£¬£¬£¬£¬£¬port£¬£¬£¬£¬£¬£¬yard and storage£¬£¬£¬£¬£¬£¬etc£®It is used for loading£¬£¬£¬£¬£¬£¬unlo ading and carrying steel plate£¬£¬£¬£¬£¬£¬profile steel£¬£¬£¬£¬£¬£¬and spool£®etc£®It is especially applica ble to lift material of different specifications and which needs horizontal rotation£®The spacing of electromag net can be adiusted electrically and magnetic force of electromagnet can be adjusted through infinitely variable control according to the specifications(different thickness£¬£¬£¬£¬£¬£¬length and pieces£¬£¬£¬£¬£¬£¬etc.£©and weight of the lifted material£®The followings can be supplied according to the user¡¯s requirements£ºspeed governing(1£º10 or larger)of the mechanisms£¬£¬£¬£¬£¬£¬overload&warning£¬£¬£¬£¬£¬£¬remote control£¬£¬£¬£¬£¬£¬PLC control£¬£¬£¬£¬£¬£¬failure de tection£¬£¬£¬£¬£¬£¬display£¬£¬£¬£¬£¬£¬record and printing system£¬£¬£¬£¬£¬£¬etc£®(the data below is used for indoor)£®


ʵÁ¦°ü¹Ü¡¡Äê²úÏú97000Óą̀
ÏÖÓÐÔ±¹¤3100ÈË£¬£¬£¬£¬£¬£¬Õ¼µØ68ÍòÓàÆ½·½Ã×£¬£¬£¬£¬£¬£¬ÓµÓÐ×ʲú12.8ÒÚÔª£¬£¬£¬£¬£¬£¬480Óà¼ÒÏúÊÛЧÀÍ»ú¹¹·øÉ亣ÄÚÍ⣬£¬£¬£¬£¬£¬ÖÖÖÖ¼Ó¹¤×°±¸1600Óą̀£¨Ì×£©Æ·Åưü¹Ü¡¡ÖØ»úлḱÀíʳ¤µ¥Î»
ÒÑ»ñ²¿¼¶¡¢Ê¡¼¶120ÓàÏîÉùÓþ³Æºô£¬£¬£¬£¬£¬£¬²úÆ·ÍÑÏúÌìÏÂ30¶à¸öÊ¡ÊÐ×ÔÖÎÇøÓë¾ü¹¤¡¢ºËµç¡¢º½ÌìµÈ¹úÆó¼¯ÍލÉèÁËÓÅÒìµÄÓªÒµ¹ØÏµÖÊÁ¿°ü¹Ü¡¡°ÙµÀÖʼ칤ÐòרÈËרְ
ÍêÉÆµÄÖÊÁ¿ÏµÍ³¡¢ÑÏ¿áµÄÖÎÀíÖÆ¶È£¬£¬£¬£¬£¬£¬ÒÑͨ¹ýGB/T19001/ISO9001ÖÊÁ¿ÖÎÀíϵͳ£¬£¬£¬£¬£¬£¬GB/T24001/ISO14001ÇéÐÎÖÎÀíϵͳµÈЧÀͰü¹Ü¡¡ÊÛºó24Сʱ¿ìËÙÏìÓ¦
ƾ֤ÌõÔ¼ÒªÇóΪÊÛ³öµÄ×°±¸¾ÙÐÐ×°Öᢵ÷ÊÔºÍÅàѵÂò·½ÊÖÒÕÖ°Ô±£¬£¬£¬£¬£¬£¬7*24Сʱרְ¿Í·þ¿ìËÙÏìӦЧÀÍ£¬£¬£¬£¬£¬£¬¿ìËÙ½â¾öʹÓÃÄÑÌâÃâ·Ñ¶¨ÖƲúÆ·¼Æ»®¡¡Ô¤Ô¼ÊµµØ¿¼²ì
רעΪ¿Í»§ÌṩÆð֨װ±¸ÕûÌå½â¾ö¼Æ»®
רעΪ¿Í»§ÌṩÆð֨װ±¸ÕûÌå½â¾ö¼Æ»®
01
ÏàʶÐèÇó02
È·¶¨ÐèÇó03
Ç©ÊðÌõÔ¼04
×¼ÆÚÉú²ú05
ÅäËÍ×°ÖÃ01
ÊÛºóЧÀÍ
ÌìÏÂͳһЧÀÍÈÈÏߣº
135-2505-6999
ɨһɨ
¹Ø×¢ÎÒÃÇ
ÌìÏÂÃâ·ÑЧÀÍÈÈÏß
135-2505-6999